3D-модель
Соня Добычина

Для Сони «важным местом» в городе стал перерезанный улицей двор на Покровском бульваре, в котором прослеживался градиентный переход от открытых общественных мест до самых приватных и скрытых закутков. Такой принцип изменения качеств пространств студентка взяла за основу при разработке своей части совместного проекта квартала.

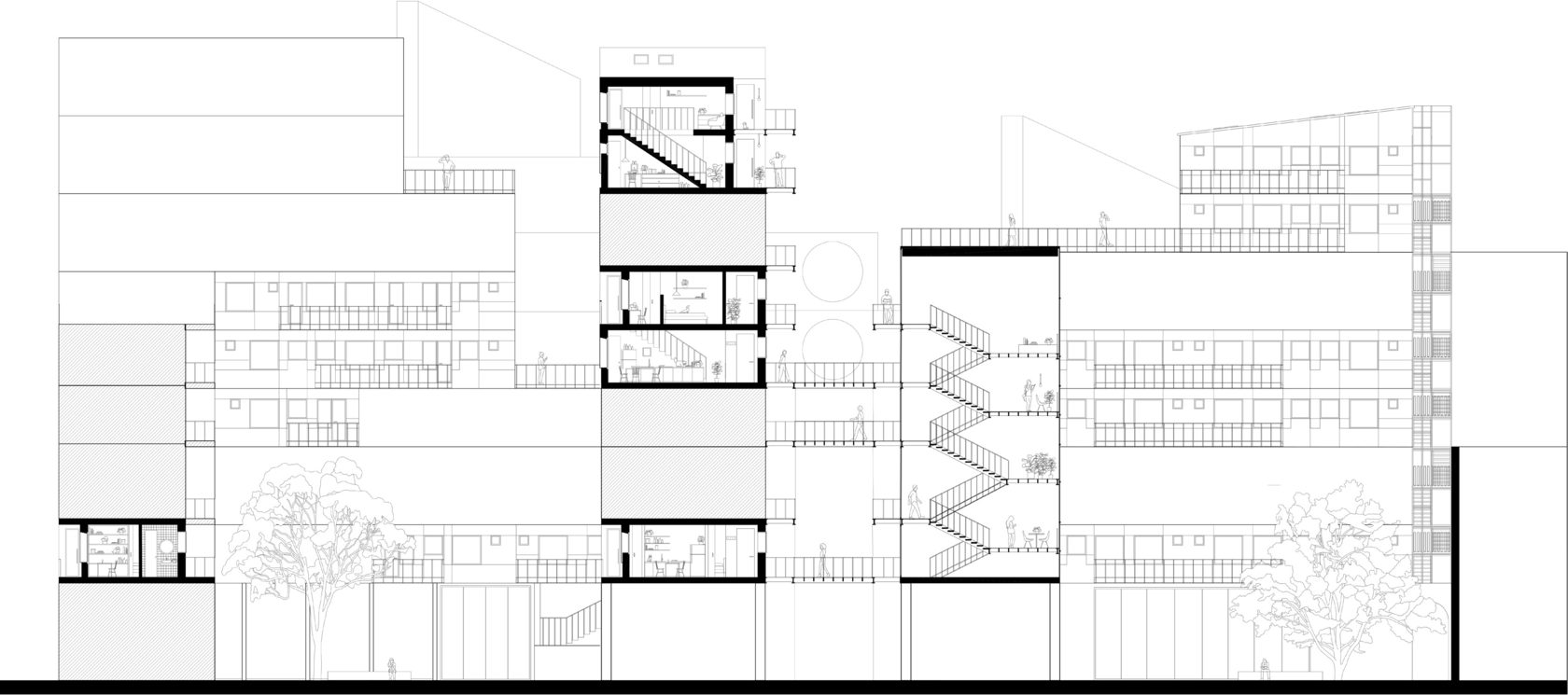
Сквозь стилобат проложен проезд, разделяющий внутренние дворы. В каждом из дворов возникает градиент от общего к частному ― через второстепенные дорожки, изрезанную фасадную линию, арки-проходы. По такому же принципу организовано пространство жилых ячеек. В каждой квартире есть «прострел» между соосными окнами на противоположных стенах, через который квартира просматривается насквозь, а другие помещения наращивают свою степень приватности по мере отдаления от оси.

Бауманская: градиент

Ситуационный план
Внутренний двор и холл дома
Фрагмент лестницы
Варианты квартир
Вид с улицы
.Фрагмент «Дом». План
Интерьер
Стилобат «Важное место». План и фрагмент плана
Разрез
Фрагмент фасада
Разрез
Поэтажные планы