Разрез
3D-модель
Ситуационный план
Полина Арефьева

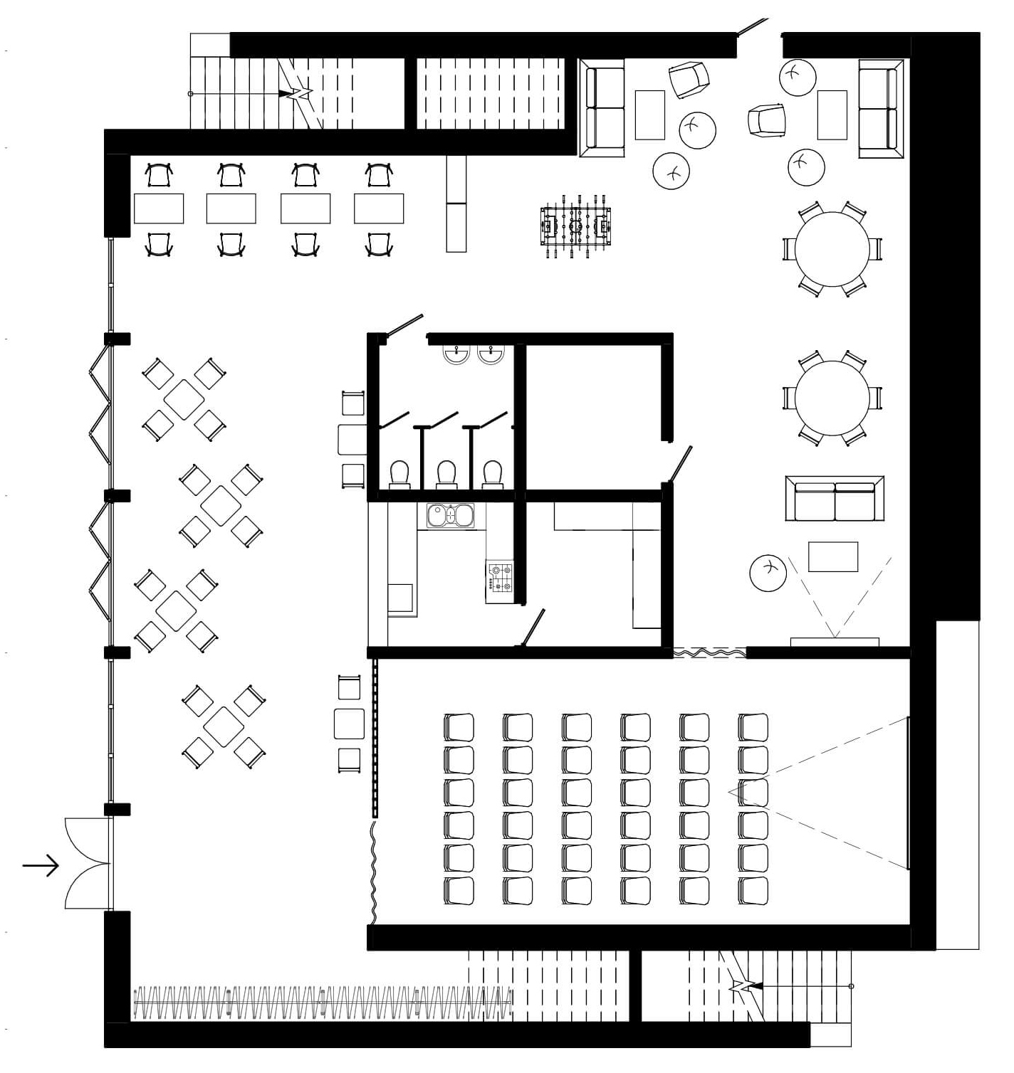
Особым местом на пути Полины Арефьевой от дома до школы стала площадка под подпорной стеной на границе между новым жилым комплексом и старым микрорайоном в Одинцово. Полина заметила, что для несмотря на обилие пространств, обустроенных для разных групп людей, в районе нет ничего подходящего интересам подростков.

В качестве центра повседневности студентка предложила объект, которым подростки могут управлять по своему усмотрению: кататься на скейтбордах, играть в настольные игры, рисовать граффити, собирать музыкальные вечеринки, организовывать праздники, устраивать кинопросмотры. Два лаконичных призматических объёма нового здания сходятся скатами друг к другу, образуя амфитеатр на крыше. Глухими бетонными фасадами они защищают внутреннюю жизнь от посторонних глаз и шумной дороги, а послеобеденное солнце впускают через остекление во всю высоту этажа.

Merge

Фасады
Cюжеты центра
Интерьер
Конструктивный элемент амфитеатра
План
Дневник студента